公司根據西方發達國家提出的污泥處理方案,結合我國國情和節能減排政策在學習和研究同行有關污泥處理方案的基礎上,集眾家之所長,在上海交大、上海同濟大學等科研院校的幫助下,摸索出了一整套適合我國國情的污泥處理適用型新方案——污泥表面量化破壁改性與機械擠壓脫水集成方案,獲得含固率較高的泥餅,從而實現泥水分離,并在關聯節點做了不斷優化完善,目前已形成4種規格型號系列,以適應不同的污泥處理量及客戶不同的需求。 KTSD脫水機分低壓,中壓,高壓,超高壓四個壓濾區壓濾動作均由氣動元件自動控制,變頻調速根據產量和含水率要求進行調節,此壓濾設備改變了傳統意義上的污水凝聚后的壓濾而是膏糊狀類污泥直接壓濾的格局。
適用于市政污泥、石油煉化、制革、印染造紙、煤化選礦、鋼鐵酸洗、化工制糖、食品加工等,同時對果類榨汁殘渣脫水。優點:該系統操作簡單,運行成本低,污泥經改性后直接由壓濾機壓濾脫水,不堵塞

工作原理:通過對含水率80%左右的污泥進行化學調質改性處理后再高壓擠壓脫水至含水率60%以下,KTSD壓濾脫水機是由上下兩條張緊的濾帶夾帶著污泥層,從一連串有規律排列的輥壓筒中呈S型經過依靠濾帶本身的張力形成對污泥的擠壓和剪切力,把污泥層中的毛細水擠壓出來,獲得含固率較高的泥餅,從而實現污泥的脫水。

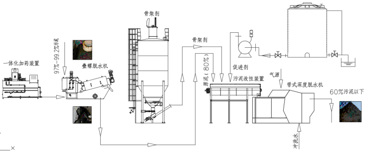
工作流程圖:

設備特點:可以直接與原始污泥出口對接,不另行配置,直接連接,從進料到出泥餅幾分鐘完成,從而達到不間斷連接生產的目的不需要預留中間堆放場地,大大減少了污泥處理處置過程的投資、運營成本和環境危害。

機型 | 帶寬(mm) | 處理量(kg/h) (80%) | 功率(Kw) | 凈重(kg) | 運行重量(kg) | 外形尺寸 | ||
長(mm) | 寬(mm) | 高(mm) | ||||||
KTDS500 | 500 | 400-800 | 2.57 | 2350 | 2750 | 2810 | 1420 | 2400 |
KTDS1000 | 1000 | 800-1600 | 4.37 | 3600 | 4300 | 3380 | 1860 | 1750 |
KTDS1500 | 1500 | 1750-3500 | 6.25 | 6700 | 7800 | 4700 | 2360 | 2400 |
KTDS2000 | 2000 | 3000-6000 | 8.25 | 9100 | 10600 | 5020 | 2880 | 2460 |
工藝流程:
1)經過疊螺式污泥脫水機初級脫水,將含水率99%的污泥降至含水率75%-85%。
2)調理后的污泥定量輸送至密相帶式深度脫水機上方的污泥布料器中,在機械作業下,污泥形成大小均勻的泥團分布在密相帶式深度脫水機進泥口表面的濾帶上,在電機的驅動下,上下兩條張緊的濾帶夾帶著污泥依次通過低壓區、中壓區、高壓區與超高壓區,污泥中的水分逐步被擠壓分離出來,最終含水率降至60%以下。經過設置在相應區域的濾液收集槽收集外排,泥餅經設備末端從濾布表面分離出來。
3)脫水后的泥餅經螺旋輸送機輸送至污泥料倉中外運處理。
